accueil
agence
portfolio
actualités
partenaires
contact
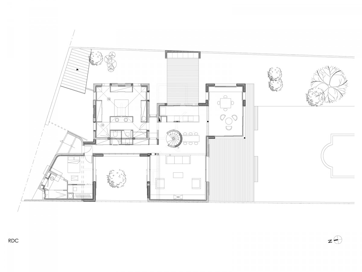
Maison RE
Réhabilitation et extension d’une habitation
Maison individuelle
Maître d’Ouvrage:
Privé
Maîtrise d’Oeuvre:
aaca
Mission:
de base
Montant des travaux:
NC
Surface:
185 m² surface plancher
Année:
2010
Lieu:
Saint-Martin de Ré - 17
Compétences:
habitat individuel
Retour
|
Précédent
|
Suivant