• Maison PA
  • Maison PA
  • Maison PA
  • Maison PA
  • Maison PA
  • Maison PA
  • Maison PA
  • Maison PA
  • Maison PA
  • Maison PA

Maison PA

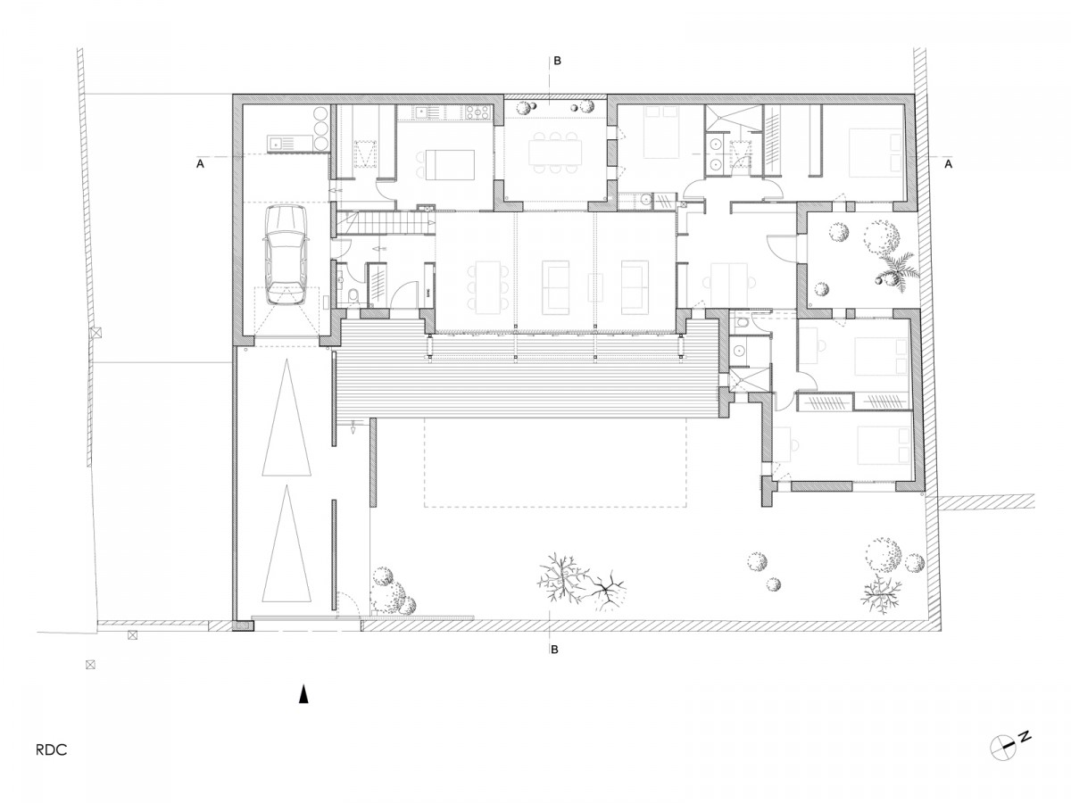
Construction d’une habitation

Maison individuelle

Maître d’Ouvrage: Privé Maîtrise d’Oeuvre: aaca Mission: de base Montant des travaux: NC Surface: 190 m² surface plancher Année: 2009 Lieu: La Rochelle - 17 Compétences: habitat individuel