accueil
agence
portfolio
actualités
partenaires
contact
Maisons BM
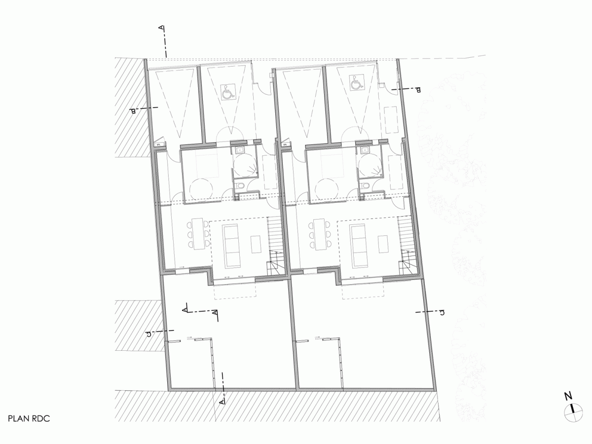
Construction d’une habitation BBC
2 maisons de ville
Maître d’Ouvrage:
BMP
Maîtrise d’Oeuvre:
aaca
Mission:
de base
Montant des travaux:
275 000 euros H.T.
Surface:
244 m² surface plancher
Année:
2015
Lieu:
La Rochelle - 17
Compétences:
habitat collectif
Retour
|
Précédent
|
Suivant