• Maison EO
  • Maison EO
  • Maison EO
  • Maison EO
  • Maison EO
  • Maison EO
  • Maison EO
  • Maison EO
  • Maison EO

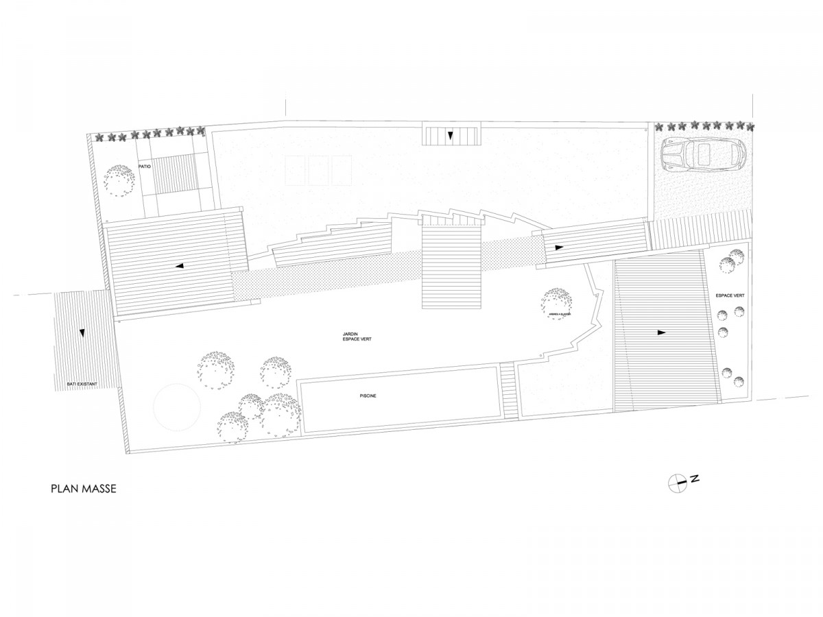
Maison EO

Construction d’une habitation

Maison individuelle

Ossature bois

Maître d’Ouvrage: Privé Maîtrise d’Oeuvre: aaca Mission: de base Montant des travaux: 400 000 euros H.T. Surface: 191 m² surface plancher Année: 2008 Lieu: Lagord - 17 Compétences: habitat individuel